Beniamin Gonț construiește alte două blocuri rezidențiale de lux, în Sinaia, fără să respecte regulile urbanistice ale orașului. Construcțiile nu sunt finalizate.

Beniamin Gonț construiește alte două blocuri rezidențiale de lux, în Sinaia, fără să respecte regulile urbanistice ale orașului. Construcțiile nu sunt finalizate.
30/09/2025
Anchetă: Omul de afaceri Beniamin Gonț construiește încă 2 blocuri de lux la Sinaia, lângă pădure și vinde mai multe locuințe decât îl lasă legea. Legături cu firme abonate la bani publici
Actualizare 6.10.2025: După publicarea anchetei PressOne, Cristian Mugurel Stancu, proprietarul și administratorul Maristar COM SRL, a revenit cu un drept la replică.
Redacția îl contactase înainte de publicare, pe data de 25.09.2025. PressOne l-a întrebat atunci, printre altele:
- Cum explică MRS Residence faptul că a scos la vânzare 18 locuințe, deși autorizația de construire prevede doar 12 apartamente și 3 spații comerciale;
- Cum explică faptul că spațiile de parter autorizate ca spații comerciale sunt construite și amenajate încă de la început cu intenția să fie vândute ca apartamente;
- Cum justifică firma creșterea valorii contractelor publice încheiate cu Primăria Sinaia în special a proiectului Pasarelei pietonale, precum și prelungirea termenului de execuție de la 12 luni la 41.
La acel moment însă, Cristian Mugurel Stancu a refuzat dialogul.
Între timp, Cristian Mugurel Stancu a revenit cu precizări. El susține, printre altele, că MRS Residence din Sinaia respectă în totalitate legislația, reglementările urbanistice și normele tehnice aplicabile, „fiind dezvoltate transparent și responsabilă.”
„Domnul Cristian Stancu nu a achiziționat, nici direct și nici prin intermediari, Complexul Astoria” - se mai transmite în dreptul la replică.
Cristian Mugurel Stancu precizează că la acest moment deține 100% din firmă și transmite că asocierea Maristar Com SRL, Rad Panorama și SC LE GRAND G&G SRL nu a participat la licitația din 2021 pentru construirea pasarelei din Sinaia, așa cum PressOne a relatat în mod eronat. Cele trei firme au beneficiat de lucrare câteva luni mai târziu, în martie 2022, câștigând licitația publică la valoarea de 23.8 milioane de lei fără TVA.
De la momentul atribuirii contractului pentru pasarela Sinaia (martie 2022) și până astăzi, când este la un pas de terminare, valoarea lucrării a crescut cu peste 35%. În dreptul la replică, Cristian Mugurel Stancu susține că procentul de majorare a valorii contractului ar fi de 13.12% și justifică astfel:
Valoarea contractului = 23,875.423,28 lei
- Valoare adaugata prin dispozitii de santier tehnice = 3.133.138,18 lei
Mulți ne citesc, puțini ne susțin. Fără ajutorul tău, nu putem continua să scriem astfel de articole. Cu doar 5 euro pe lună ne poți ajuta mai mult decât crezi și poți face diferența chiar acum!
- Procent de majorare a valorii contractului = 13.12%
- Valoare actualizaté contract in urma ajustarii preturilor = 32.363.334.02 lei
- Valoare ajustare preturi — conform formulei contractuale si legislatie in vigoare = 5.354.894,74 lel
- Procent cumulat ajustare a preturilor contractului = 22.43%
În termeni reali, valoarea a crescut de la 23,8 milioane de lei fără TVA, la 32,3 milioane de lei fără TVA, iar constructorul transmite că a executat-o în 21 de luni, adesea „în condiții extrem de dificile.”
Dreptul complet la replică poate fi consultat AICI.
Exclusiv. Peste 20 de ani de impostură: Doctorul Cristian Andrei, cel mai mediatizat psihoterapeut al României, practică fără atestat. Acuzații de hărțuire sexuală în cabinet
De peste 20 de ani, doctorul Cristian Andrei, mediatizat drept unul dintre cei mai buni psihoterapeuți din România, primește bani pentru ședințe de psihoterapie, cu toate că nu deține un atestat de liberă practică emis de Colegiul Psihologilor. Între timp, mai multe cliente îl acuză de hărțuire sexuală.
O carieră de abuz. Alte 7 femei îl acuză pe medicul Cristian Andrei de abuzuri sexuale. Relatările se întind pe o perioadă de peste 20 de ani
După ancheta PressOne care a dezvăluit că doctorul Cristian Andrei, unul dintre cei mai mediatizați psihoterapeuți din România, a practicat timp de peste 20 de ani fără atestat și a hărțuit sexual două paciente, alte șapte posibile victime au contactat redacția. Cristian Andrei este acuzat de abuzuri similare, întinse pe o perioadă de mai bine de 20 de ani.
Articolul original:
Omul de afaceri Beniamin Gonț vinde apartamente de lux la Sinaia, în trei imobile pe care le-a construit prin încălcarea normelor urbanistice și cu complicitatea autorităților locale. 18 apartamente sunt vândute sub umbrela MRS Residence, deși legea îi permite dezvoltatorului să construiască cel mult 12 locuințe.
Firmele Maristar Com SRL și Rad Panorama Construct construiesc blocurile lui Gonț și sunt implicate și în licitațiile publice prin care primesc lucrări de infrastructură, precum construcția unei pasarele pietonale în Sinaia sau centrul multifuncțional „Zino”, a căror valoare e apoi crescută progresiv, uneori cu peste 75% la sută. Contractele au fost modificate ulterior, cu creșterea costurilor și duratei, de multe ori peste limitele legale, fără ca primăria să reia licitația
Un newsletter pentru cititori curioși și inteligenți.
Sunt curios
PressOne publică informații și documente care arată inclusiv cum MRS Residence și Beniamin Gonț știu de faptul că ocolesc legea.
Spațiu comercial scos la vânzare ca apartament de 140 de mii de euro
David*, un client al agenției imobiliare MRS Residence, a încercat să cumpere un apartament în Sinaia, pe strada Ghioceilor, la numărul 33. Apartamentul pe care l-a ales are aproximativ 48 de mp utili, plus balcon, la prețul de 140 de mii de euro. Pentru toate apartamentele din același bloc rezidential prețurile variază între 118 -174 de mii de euro.
„M-a mirat cât de repede se dădeau apartamentele”, spune David. Din puținele opțiuni rămase disponibile a ales un apartament la parter. Înainte cu o zi de semnarea contractului, MRS Residence l-a informat că urmează să cumpere, de fapt, un spațiu comercial.
Este doar una din practicile pe care le folosesc dezvoltatori imobiliari precum Beniamin Gonț, care își maximizează astfel profiturile. PressOne continuă seria dezvăluirilor despre încrengăturile imobiliare din Sinaia, stațiunea unde omul de afaceri Beniamin Gonț construiește mai multe blocuri de locuințe cu încălcarea normelor urbanistice și vinde apoi mai multe apartamente de locuit decât ce e trecut în acte, apelând la tertipuri.
Sub umbrela proiectului imobiliar MRS Residence, Beniamin Gonț face profit de sute de mii de euro, doar din mascarea apartamentelor pe care le vinde în plus față de limita legală, în spații comerciale, săli de fitness sau de yoga.
Blocurile rezidențiale ale lui Gonț, sub umbrela MRS Residence: Sitarilor, nr. 104
PressOne a descoperit că omul de afaceri folosește practici care ocolesc legea, pentru alte două imobile din Sinaia.
După succesul primului bloc de lux, de pe Republicii nr.5, în care toate cele 9 apartamente sunt deja vândute, Gonț începe demersurile pentru construirea unui alt bloc rezidențial la Sinaia, în 2024, pe strada Sitarilor, la numărul 104.
Proiectul e vândut de MRS Residence, un brand care se poziționează ca fiind prestigios, creat de firma de construcții Maristar Com SRL: practic cei din urmă construiesc, iar MRS e interfața prin care constructorul își și vinde apartamentele.
Firma Maristar Com SRL cu care s-a asociat Gonț pentru vânzarea noilor blocuri pe care le ridică la Sinaia, este administrată de Cristian Mugurel Stancu, fost polițist retras în 2008, care a finalizat aproape o mie de apartamente în Ploiești, Sinaia, Otopeni, Băneasa și Sisești.
În 2024, MRS Residence anunță astfel pe pagina oficială de Facebook extinderea portofoliului și în Sinaia, unde vor construi un bloc rezidențial de lux, a cărui beneficiar este Beniamin Gonț. Blocul ar urma să fie construit foarte aproape de pădurea orașului.
Blocul de pe Str. Sitarilor, nr. 104 din Sinaia, parte din ansamblul MRS Residence / Foto: MRS Residence
Ca și imobilul din Bulevardul Republicii, despre care PressOne deja a relatat, proiectul propune la vânzare 9 locuințe: două de tip studio și șapte apartamente cu două camere, potrivit site-ului oficial.
Achiziționare imobilului se face printr-un antecontract și acordarea unui avans de minim 20% din prețul total al proprietății, transmite MRS Residence printr-un schimb de email-uri.
Și în cazul acestui bloc, Gonț construiește mai multe locuințe decât ar fi permis planul urbanistic general, respectiv șase. Primăria aprobă din nou proiectul.
Construirea blocului ar urma să fie gata la finalul anului 2026. În prezent, la un an jumătate distanță, toate apartamentele din acest ansamblu rezidențial sunt vândute, chiar dacă imobilul nu este încă finalizat.
Potrivit documentelor consultate de PressOne, Gonț modifică datele tehnice ale proiectului la distanță de câteva luni de la eliberarea autorizației de construcții. De exemplu, primăria aprobă o construcție de maxim (subsol) S+P+2E. În cererea avizului de mediu, Gonț cere aprobarea pentru a construi un bloc rezidential cu regim de înălțime „D+P+2E+M”, la aceeași adresă. Până la publicarea acestui articol, mansarda blocului de pe Sitarilor nr.104 nu este încă construită.
Blocul de pe strada Sitarilor, nr. 104 din Sinaia, parte din ansablul rezidențial MRS Residence nu e încă finalizat.
Ghioceilor, nr. 33: încă un tun imobiliar pe care îl dă Gonț în Sinaia
În 2025, aceeași agenție imobiliară, MRS Residence, anunță un al doilea proiect imobiliar rezidențial în Sinaia, situat pe Str. Ghioceilor nr. 33. Imobilul ar urma să fie construit tot lângă pădure, dar într-o zonă turistică. Construcția este la început.
David, un potențial client, cere o ofertă agenției imobiliare pentru unul din apartamentele puse în vânzare. Din puținele opțiuni rămase disponibile alege un apartament la parter.
Agenta MRS Residence îl sună cu mai puțin de 24 de ore înainte să semneze contractul.
„Este ceva ce am omis să vă spun. Apartamentele de la parter sunt autorizate ca și spații comerciale, în contract va apărea că este un spațiu comerical. Am vrut să știți. Suntem obligați să avem și spații comerciale la parter, dar ele au fost create ca și locuințe, la Sinaia. (...) Am mai vândut așa”, îi informează agenta imobiliară.
Discuția celor doi a fost înregistrată.
Toate cele trei imobile despre care a relatat sau relatează PressOne (de pe Republicii, nr.5, Sitarilor nr. 104 și Ghioceilor nr.33) au fie un etaj în plus față de ce spune legea și o mansardă neautorizată (cazul de pe Republicii, nr.5), fie au cu 3 apartamente mai mult față de limita legală impusă de PUG, pe care le maschează ca spații comerciale (Ghioceilor nr.33 și Sitarilor 104).
Blocul rezidențial de pe Str. Ghioceilor, nr. 33, din broșura MRS Residence. Foto: https://mrsresidence.ro
Conform planșelor tehnice consultate de PressOne, structura și compartimentarea ambelor blocuri de lux, respectiv cel de pe Sitarilor nr. 104, dar și cel de pe Ghioceilor, nr. 33 sunt identice.
Agenta imobiliară MRS Residence insistă. Susține că nu există eventuale probleme care ar putea apărea din punct de vedere legal, în cazul lui David, dacă va cumpăra un spațiu intabulat cu altă destinație, deși intenționează să-l folosească ca spațiu locativ, potrivit unei înregistrări audio care a intrat în posesia PressOne.
Experți în legislația urbanistică însă sunt de altă părere. „Îi încurcă pe cumpărători în sensul în care dacă vor să vândă, trebuie să primească o autorizație conformă sau dacă vine primăria în inspecție și le face un control și sesizează că este altă destinație, le poate da amendă și dispune intrare în legalitate a proiectului”, spun doua specialiste la a căror expertiză am apelat.
Arhitecta șefă a primăriei Sinaia: „ E treaba lor”
Zona teritorială în care e construit cel mai nou imobil al lui Gonț, blocul din strada Ghioceilor, este însă reglementată urbanistic diferit de celelalte două construcții, prin derogările unui PUZ realizat de proprietarul unor blocuri vecine cu construcția lui Gonț.
Într-un punct de vedere solicitat de PressOne, arhitecta șefă a primăriei, Mihaela Gherasim, invocă tocmai acest fapt: că Beniamin Gonț beneficiază de derogările PUZ-ului vecinului, prin urmare imobilul autorizat ar respecta regimul de înălțime.
Verificările făcute de PressOne îi dau dreptate arhitectei șefe doar pe jumătate: același document spune că pentru o construcție cu mai mult de 6 apartamente e nevoie de un nou PUZ, aprobat de primărie. Gonț respectă regimul de înălțime, dar are 9 locuințe la vânzare și niciun PUZ.
PUZ-ul invocat de arhitecta șefă stabilește faptul că orice construcție cu mai mult de 6 locuințe necesită un nou PUZ aprobat.
PressOne îi pune în vedere Mihaelei Gherasim că Gonț construiește nouă apartamente, iar în replică reprezentanta Primăriei Sinaia susține că a autorizat doar șase.
„Proiectantul are un verificator, ăla răspunde pentru modul în care își proiectează construcția. Dacă el îi zice că e spațiu comercial sau îi zice că e nu știu ce, și nu respectă normele, e treaba lor”, afirmă Gherasim. Susține că la recepție dezvoltatorul nu va primi avizul.
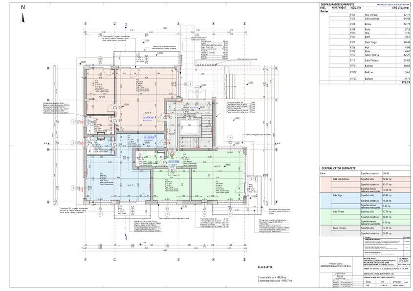
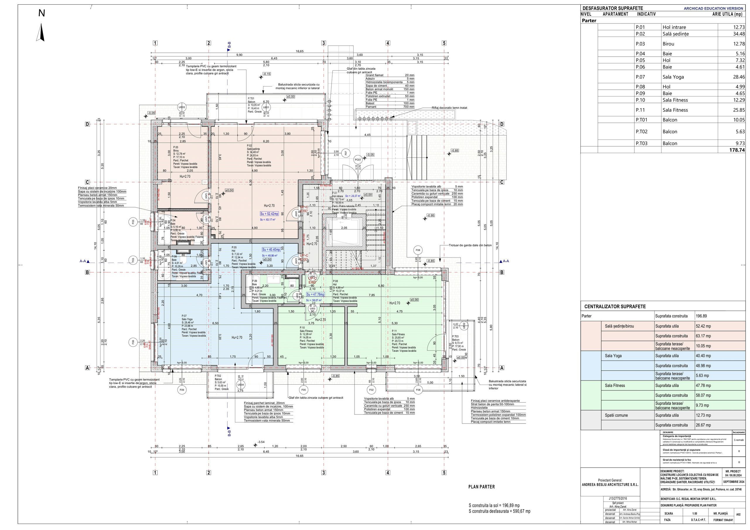
Inadvertențele din planurile tehnice. Sală de fitness cu balcon la parter
În acte, Gonț își înregistrează așadar spațiile comerciale ca săli de fitness, de yoga sau birouri, potrivit planșelor tehnice consultate de PressOne. Ulterior sunt vândute ca spații locative.
Odată aprobate de primărie, planșele tehnice nu mai pot fi schimbate decât prin dispoziție de șantier, explică pentru PressOne o arhitectă. „În proiectul tehnic detaliezi tot ce se întâmplă. Cum e scara, cum sunt camerele, cum sunt mobilate, unde sunt ferestre, unde sunt uși, tot. Și se vede ce e locuință, ce nu e locuință. Apoi, aceste planuri se vizează la primărie spre neschimbare. Ele fac parte integrantă din autorizație.”
Dar chiar și dispozițiile de șantier au anumite limitări. De exemplu, se pot face doar modificări minore, care nu afectează întregul proiect. De asemenea, teoretic, nu poți schimba destinația unui spațiu printr-o dispoziție de șantier.
O arhitectă consultată de PressOne confirmă că există practica în industria imobiliarelor de a abuza de dispozițiile de șantier. „Nu e prima dată când aud de situația asta în care, prin dispoziții de șantier, schimbă într-adevăr și destinația clădirilor.”
Potrivit planului tehnic al blocului construit pe Str. Ghioceilor, nr. 33, la parter ar urma să fie o sală de fitness, sală de yoga și sală de birouri, dar normele de calitate esențiale în exploatare nu sunt îndeplinite. Chiar dacă dezvoltatorul le-ar fi vândut ca spații comerciale, deschiderea ușilor e proiectată în desen spre interior, ceea ce e o caracteristică tehnică specifică pentru locuințe.
„În sala de fitness intră 30 de persoane. Cum se evacuează persoanele acelea dacă ușa se deschide spre interior? Trebuie să se deschidă spre exterior. Și dacă deschid spre exterior, în coridorul ăsta de 1,10 m, când se evacuează cineva îi dau cu ușa în cap, că n-are cum să iasă pe aici. Asta e prima întrebare pe care primăria ar fi trebuit să și-o pună. Aici e o greșeală de autorizare”, continuă arhitecta căreia i-am expus cazul.
În plus, proiectul lui Gonț e gândit cu balcoane la parter. „Îmi sare și mie în ochi că proiectul e vizibil făcut să fie locuință și că e minciună pe față, nu pot să am spații comerciale cu balcoane. Nu scrie nicăieri că nu ai voie balcon la un spațiu comercial, specific. Dar e chestia aia de bun simț. Până unde merg cu bunul simț?”
De asemenea, presupusele săli de yoga și de fitness nu au vestiare și nici câte două băi.
„În mod normal, mai e o răspundere aici. Proiectele se verifică la cerințele de calitate, una din ele este siguranța la exploatare și siguranța la incendiu. Și verificatorul se uită la aceste lucruri și prin ștampila pe care o pune pe planul tehnic spune că el este conform normativelor în vigoare. Deci dacă ăsta e spațiu comercial și un verificator a pus ștampila și a arătat că e corectă deschiderea de la ușă, asta înseamnă că și verificatorul răspunde.”
Verificatorii celor două proiecte imobiliare de lux sunt Marius Lulea, prim-vicepreședinte al partidului AUR și Onutu Lohengrin, președintele Organizației Ordinul Verificatorilor de Proiecte și Experților Tehnici în Construcții (O.V.E.C.) din România, conform codului de identificare de pe ștampilele proiectelor.
Plansă tehnică cu semnătura verificatorilor: Lulea Marius, prim-vicepreședinte al partidului AUR, și Onutu Lohengrin, președintele Organizației Ordinul Verificatorilor de Proiecte și Experților Tehnici în Construcții (O.V.E.C.)
Cine e in spatele Maristar Com SRL
MRS Residence este brandul imobiliar de lux al Maristar Com SRL, prin care firma vinde apartamentele construite. Același constructor îi ridică și cele trei blocuri lui Beniamin Gonț, la Sinaia.
Administratorul majoritar al firmei este Cristian Mugurel Stancu.
Cristian Mugurel Stancu, administratorul firmei de construcții Maristar Com SRL, la un eveniment privat MRS Residence. Foto: Facebook MRS Residence
Stancu, apropiat al lui Hubert Thuma (PNL), președintele CJ Ilfov, și al lui Sorin Grindeanu (PSD), ar fi fost implicat în mai multe afaceri imobiliare controversate: de exemplu vânzarea complexului Astoria de la CFR Turism SA către Simart Arhitecture SA pentru 50.000 de euro.
Partenera lui Stancu de afaceri, Georgiana Rauti, deține 1% din firma Maristar și apare ca administrator în mai multe firme din aceeași rețea: MARISTAR CONSTRUCTII CIVILE SRL, GRT Fincons Adviser SRL și până recent și în Tratoria MRS SRL. Ultima dintre ele manageriază localul de evenimente de lux, Ramatuelle, din județul Prahova, parte din proiectele MRS Residence. În Prahova, Maristar deține zece proiecte imobiliare de lux.
De asemenea, Georgiana Rauti, partenera de afaceri a lui Stancu, este și sora Emiliei Pascu, soția fostului consilier local PNL al primăriei Sectorului 6 din București, Cristian Gabriel Pascu, hairstylist și consultant în construcții al firmei Maristar com SRL.
La evenimentele private organizate de Stancu sunt invitați și oficiali din primăria Sinaia, toți membrii PNL. În vara anului în curs, MRS Residence a postat o fotografie în care apar la aceeași masă Beniamin Gonț, consiliera PNL, Monica Maria Suvaina, și directoarea Școlii Gimnazială ,,George Enescu" din Sinaia, Rodica Rădulescu, membră de partid, implicată în promovarea lui Vlad Oprea în campaniile electorale. MRS inaugura un nou proiect imobiliar.
La evenimentele private organizate de Stancu sunt invitați și oficiali din primăria Sinaia, toți membrii PNL: Beniamin Gonț (drapta), consiliera PNL, Monica Maria Suvaina (în mijloc), și directoarea Școlii Gimnazială ,,George Enescu" din Sinaia, Rodica Rădulescu (lângă Gonț).Foto: Facebook MRS Residence
CEO-ul companiei Maristar este George Vlasie, imaginea firmei de construcții pe site-urile oficiale. În mai multe poze de pe pagina de Instagram oficială Maristar, Vlasie participă la ceremonii de sfințire a lucrărilor de infrastructură împreună cu secretari de stat PNL din Ministerul Transporturilor: de exemplu Irinel Ionel Scriosteanu, sau alături de președinții Consiliilor Județene din Dâmbovița și Prahova.
Irinel Ionel Scriosteanu este și prim-vicepreședinte PNL Ilfov, un apropiat al lui Hubert Thuma (PNL), baronul liberal care conduce Consiliul Județean Ilfov din 2020, condamnat la închisoare de DNA într-un dosar de corupție din 2013.
În județele Dâmbovița, Prahova și Ilfov firma Maristar COM SRL are cele mai multe contracte publice pentru modernizarea drumurilor naționale, lucrări publice de infrasructură sau ridicarea mai multor clădiri din fonduri europene.
Director executiv al aceleiași firme este Aldea Constantin Dănuț, fondatorul companiei de construcții Rad Panorama Construct SRL, o altă firmă care construiește în prezent blocurile rezindențiale de lux ale lui Gonț din Sinaia. Așa cum a arătat PressOne, Rad Panorama este și proprietarul unui apartament în aceeași curte în care Gonț și-a construit primul bloc rezidential.
Director executiv al firmeI Maristar Com SRL este Aldea Constantin Dănuț (dreapta), fondatorul companiei de construcții Rad Panorama Construct SRL, o altă firmă care construiește în prezent blocurile rezindențiale de lux ale lui Gonț din Sinaia. Foto: Facebook MRS Residence
Anul trecut, firma Maristar Com SRL a avut o cifră de afaceri de 228 de milioane de lei.
Primarul Vlad Oprea acuză PressOne. Viceprimarul nu dorește să comenteze
La ora publicării acestui articol, primarul din Sinaia, Vlad Oprea, este acasă, pentru că procurorii l-au plasat în arest la domiciliu pentru fapte de corupție.
Într-o discuție telefonică purtată cu reportera PressOne, Vlad Oprea a susținut că nu știe nimic despre blocurile pe care le-a construit Gonț în oraș, și nici despre firmele care îl construiesc proiectele.
Vlad Oprea susține că toate proiectele imobiliare autorizate în Sinaia, oraș pe care l-a condus timp de șase mandate consecutive, încă din anul 2004 încoace, respectă reglementările urbanistice. El acuză redacția de interese ascunse.
Oprea a acuzat întrebări tendențioase, deși i-am pus în vedere că deținem documente care dovedesc cele susținute. „Asta e o minciună. Ce faceți dumneavoastră este un articol comandat de cei care vor să distrugă acest oraș. Și este evident acest lucru prin întrebările tendențioase pe care mi le puneți. Ați făcut niște afirmații că sunt construcții fără avize luate, că domnul Gonț este partenerul meu de afaceri. Nu am nicio afacere cu dânsul. Dumneavoastră primiți bani de la cei care vor să distrugă în acest moment orașul. Este evident acest lucru. Dumnezeu să vă ierte pentru ceea ce faceți!”
L-am contactat și pe viceprimarul primăriei Sinaia, Vasile Gheorghe, care acum asigură interimatul la conducerea instituției. Despre el G4Media publica în primăvară stenogramele discuțiilor cu primarul Vlad Oprea, după ce amândoi au încălcat interdicția instanței de a comunica pe perioada anchetei DNA. Printre altele, Vlad Oprea îi dădea indicații despre mai multe contracte din Sinaia.
Viceprimarul Vasile Gheorghe a refuzat să răspundă întrebărilor PressOne și ne-a transmis că nu dorește să comenteze pe tema blocurilor ridicate ilegal de Beniamin Gonț.
Omul de afaceri Beniamin Gonț se oferă să răspundă întrebărilor PressOne la o cafea
L-am contactat și pe Beniamin Gonț, beneficiarul celor trei blocuri de lux din Sinaia, care vinde mai multe apartamente decât îi permite legea.
Gonț a solicitat ca întrebările să îi fie transmise în scris și, până la publicarea acestui articol, nu a oferit niciun răspuns. În schimb, i-a propus reporterei o întâlnire la cafea, unde ar fi disponibil să își exprime punctul de vedere.
Invitația la cafea a fost declinată.
Contracte publice majorate cu milioane de lei, după 6 luni. Valoarea unor contracte s-a majorat cu peste 75%
Înainte să construiască blocurile de lux ale lui Gonț, Maristar și Rad Panorama au fost câștigătoarele mai multor contracte avantajoase cu primăria Sinaia, atribuite direct sau prin licitație.
Cele două firme au obținut și construirea unei pasarele pentru pietoni la intrarea în stațiunea montană și construirea centrului multifuncțional educațional recreațional „Zino - educație de la A la Z”, în cadrul „Colegiului Mihail Cantacuzino”.
Contractul pentru construirea pasarelei orașului Sinaia a fost atribuit către firmele Maristar Com SRL, Rad Panorama și SC LE GRAND G&G SRL la valoarea de 18,3 milioane de lei fără TVA, prin fonduri europene, în 2021. Timpul de execuție asumat este de 12 luni.
Contractul pentru construirea pasarelei orașului Sinaia a fost atribuit către firmele Maristar Com SRL, Rad Panorama și SC LE GRAND G&G SRL la valoarea de 18,3 milioane de lei fără TVA, prin fonduri europene, în 2021.
Jumătate de an mai târziu, prețul lucrării crește la 24,7 milioane de lei fără TVA, adică cu 35% mai mult.
Jumătate de an mai târziu, prețul lucrării crește la 24,7 milioane de lei fără TVA, adică cu 35% mai mult.
În contract creșterea valorii este motivată de cele trei firme de adăugarea de subcontractori, cu mențiunea că este o modificare nesubstanțială a contractului.
„Legea spune că dacă valoarea lucrărilor suplimentare depășește 15% atunci este o modificare substanțială în cazul serviciilor și la bunuri de până la 10%. Deci numai sub 15%, respectiv 10%, se acceptă această modificare. Tot legiuitorul spune că și durata este o modificare substanțială”, spune specialista în achiziții publice Valeria Tudora.
Maristar com SRL și Rad Panorama Construct SRL și-au asumat un interval de 12 luni pentru finalizarea lucrării. Proiectul este modificat acum la 40 de luni, iar valoarea contractului a crescut la 32,3 milioane de lei fără TVA, adică cu 76,5% mai mult față de suma inițială.
Maristar com SRL și Rad Panorama Construct SRL și-au asumat un interval de 12 luni pentru finalizarea lucrării. Proiectul este modificat acum la 40 de luni, iar valoarea contractului a crescut la 32,3 milioane de lei fără TVA, adică cu 76,5% mai mult față de suma inițială.
Experta în achiziții publice consultată de PressOne explică că orice modificare care trece de pragul de 15% din valoarea inițială sau prelungește nejustificat de mult durata lucrării, ar trebui să ducă la relicitarea contractului.
„Care e logica? Că dacă la momentul licitației toți ofertanții ar fi știut că urmează acele modificări și că de fapt contractul arată diferit după modificare, poate nu aveam câștigătorul dat. Și atunci dacă sunt modificări nesubstanțiale putem să facem un act adițional la contractul de execuție, dacă sunt substanționale trebuie relicitat contractul. Din experiența mea, în practică, foarte puține autorități își asumă chestia”, explică experta în licitații publice.
În plus, firmele câștigătoare ale unei licitații își pot actualiza prețul lucrării timp de doi ani de de la începutul lucrării. Valoarea se calculează lunar, în funcție de piață. Asta înseamnă că prelungirea contractului fără relicitare creează avantaje financiare tot firmei de construcții, explică Valeria Tudora.
„Dacă atunci când am scos la licitație am estimat că durata contractului meu este de șapte luni și am estimat o actualizare de preț de 5 lei. Dacă apoi o fac de 40 de luni e o problemă. De multe ori constructorii, de când au prevederea asta, tărăgănează lucrările pentru că știu că oricum nu pierd, că li se aplică indicele ăla de actualizare. Și mulți stau și nu fac nimic și iau actualizarea asta mai multe luni decât ar fi cazul.”
Lucrările trenează cu anii, constructorii susțin că respectă legea
În cazul orașului Sinaia, acest tipar nu este o excepție. Un mod de operare similar este și în cazul construcției centrului multifuncțional „Zino de la A la Z”, tot din Sinaia, finanțat cu fonduri europene și semnat în 2022.
Prețul estimat prin contract era de 18 milioane lei fără TVA, cu termen de 19 luni pentru execuție. Trei ani mai târziu, firmele au adus 8 modificări contractului, printre care majorarea prețului la 20,1 de milioane de lei fără TVA, majorarea timpului de execuție la 49 de luni și adăugarea mai multor subcontractori deși, la începutul licitației s-a declarat că nu vor fi necesari.
Iar recent, Spot Media a relatat că Ministerul Investițiilor și Proiectelor Europene a cerut primăriei Sinaia restituirea unor părți semnificative din fondurile europene investite in modernizarea Școlii „George Enescu” din oraș, pentru că a constata mai multe nereguli în procesul de achiziții publice. Primăria ar fi mărit prea mult valoarea contractului prin acte adiționale, potrivit unui raport al Serviciului de Constatare Nereguli și Antifraudă din cadrul MIPE.
Contactați de PressOne, reprezentanții Maristar Com SRL, principala firmă de construcții responsabilă pentru blocurile lui Gonț din Sinaia, au refuzat să ofere explicații despre neregulile blocurilor rezidențiale de lux, așa cum au fost semnalate de redacție. De asemenea, firma nu a explicat nici de ce contractele publice cu primăria Sinaia cresc succesiv costurile lucrărilor de infrastructură.
„Compania noastră respectă reglementările legale în vigoare, astfel că dacă aveți nelămuriri sau dubii, vă rugăm să vă adresați instituțiilor competente să verifice! Alte comentarii nu avem.”
Între timp, pe site-ul oficial MRS Residence, agenția imobiliară controlată de Maristar, nu mai pot fi găsite informații sau anunțuri despre apartamentele lui Beniamin Gonț. După publicarea primului articol de către PressOne, a fost retrasă de pe site inclusiv oferta celui mai nou imobil al lui Gonț, de pe strada Ghioceilor.
David* este un pseudonim pentru a proteja identitatea sursei PressOne.

Avem nevoie de ajutorul tău!
Mulți ne citesc, puțini ne susțin. Asta e realitatea. Dar jurnalismul independent și de serviciu public nu se face cu aer, nici cu încurajări, și mai ales nici cu bani de la partide, politicieni sau industriile care creează dependență. Se face, în primul rând, cu bani de la cititori, adică de cei care sunt informați corect, cu mari eforturi, de puținii jurnaliști corecți care au mai rămas în România.
De aceea, este vital pentru noi să fim susținuți de cititorii noștri.
Dacă ne susții cu o sumă mică pe lună sau prin redirecționarea a 3.5% din impozitul tău pe venit, noi vom putea să-ți oferim în continuare jurnalism independent, onest, care merge în profunzime, să ne continuăm lupta contra corupției, plagiatelor, dezinformării, poluării, să facem reportaje imersive despre România reală și să scriem despre oamenii care o transformă în bine. Să dăm zgomotul la o parte și să-ți arătăm ce merită cu adevărat știut din ce se întâmplă în jur.
Ne poți ajuta chiar acum. Orice sumă contează, dar faptul că devii și rămâi abonat PressOne face toată diferența. Poți folosi direct caseta de mai jos sau accesa pagina Susține pentru alte modalități în care ne poți sprijini.
Vrei să ne ajuți? Orice sumă contează.
Share this

















